糖果公社,首旅集团打造通州于家务,总价50万起的loft公寓;告别环京 跟检查站说再见。
国企开发商"首旅集团"耀世登场,可以北京 何必环京,全北京最低总价大产权产品
北京通州国企开发,现房销售,当月下房本,即买即住,总价50万一套,小投资,大回报

项目基本情况
【楼盘名称】:糖果公社
【项目位置】:通州于家务次中心乡渠头镇
【开发商】:首旅集团旗下开发公司(紫峰房地产开发有限公司)

【建筑风格】:北欧典雅风格【产权年限】:50年商办不动产权
【产品类型】:商业、办公 【房屋总价】:50万起
【占地面积】:2947平米 【建筑面积】:30209平米

【房屋总高】:4层5层8层14层【房屋层高】:4.2米层高
【在售面积】:37㎡-40㎡-77㎡【项目均价】:13000
【物业公司】:北京优嘉物业管理有限公司
【总户数】:460户 【容积率】:2.8

【绿化率】:30% 【梯户比】:五梯十五户
【朝向】:南、北 【交房标准】:毛坯
【交房时间】:现房 【供暖方式】:市政集中供暖42元/㎡

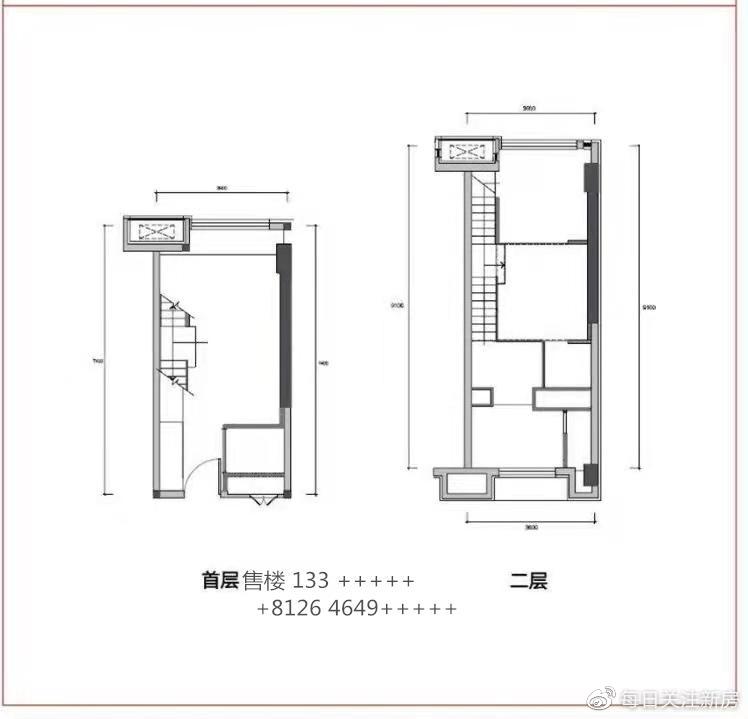
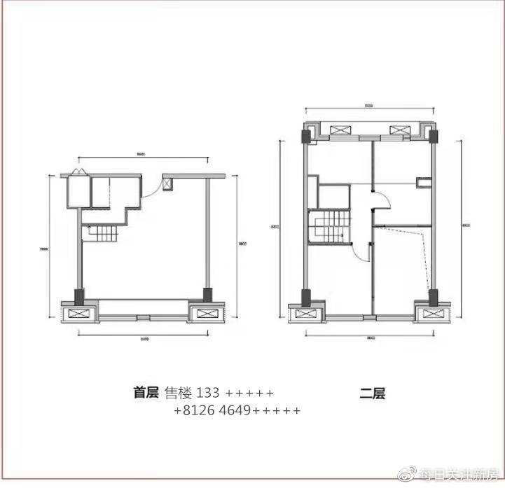
下边是装修方案供大家参考,
房子使用面积57平米,坐标:北京通州,本案是一个层高 4.2m 的 Loft 户型,

▲ 入户玄关处挑高设计,纵向拉伸了门厅与客厅之间空间关系

▲ 一楼地面做了自流平,整体感非常强,客厅的沙发可以随时调整位置摆放

▲ 留白背景用造型搁板做了开放式书架,收纳与展示功能并

▲ 简洁的电视墙挑高延伸至二楼


▲ 开放式布局,除了空间感更好之外

▲ 一楼与二楼,以楼梯和滑梯双重设计转载出空间中的动与静

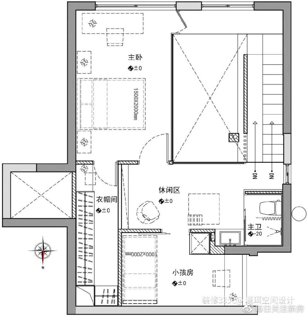
▲ 从二楼俯瞰客厅视角

▲ 二楼平面布置图

▲ 二楼过道规划出儿童阅读区

▲ 儿童房布置简约实用,暂时用一张带大抽屉的床

▲ 主卧以高级灰和白色为基调,营造出静谧舒适的睡眠氛围

▲ 主卧与挑高区以玻璃替代隔墙

▲ 靠窗的位置规划阅读区

▲ 卫生间干湿分离,提高使用效率,用长虹玻璃移门做湿区隔断
设计| 璞珥空间设计


